Descripción
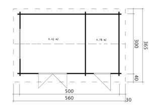
| Medidas exteriores de la casa: | 5 x 3 m |
| Altura de la pared: | 2,16 m |
| Altura total: | 2,43 m |
| Grosor de la pared: | 44 mm |
| Superficie interior: | 15 m² |
| Techo: | Ca. 23 m², el kit incluye tablas de techo de 18 mm |
| Suelo: | 18 mm |
| Puertas: | 1 x puerta de entrada 1,43 x 1,96 (de doble acristalamiento), 1 x puerta 0,84 x 1,96 m. |
| Ventanas: | 1 x ventana practicable de 1,5 x 1,14 m, de doble acristalamiento. |
| Material: | Abeto nórdico |
| Información adicional: | Vigas de base tratadas, listones anti-tormenta, kit de montaje, puertas y ventanas acristaladas, cerradura de cilindro, manual del producto, garantía de 5 años. |












