Descripción
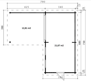
| Medidas exteriores de la casa: | 7,2 x 3,4 m |
| Altura de la pared: | 2,3 m |
| Altura total: | 2,63 m |
| Grosor de la pared: | 70 mm |
| Superficie interior: | 22 m² |
| Techo: | Ca 45 m², el kit incluye tablas de techo de 18 mm |
| Suelo: | 28 mm |
| Puertas: | 1 x puerta corredera 1,43 x 1,95, 1 x puerta de entrada 0,84 x 1,95 m (de doble acristalamiento). |
| Ventanas: | 2 x ventana oscilobatiente de 0,8 x 1,8 m de doble acristalamiento. |
| Material: | Abeto nórdico |
| Información adicional: | Tablones de base impregnados, listones anti-tormenta, kit de montaje, puertas y ventanas acristaladas, cerradura de cilindro, manual del producto, garantía de 5 años. |













