Descripción
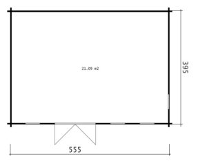
| Medidas exteriores de la casa: | 5,7 x 4,1 m |
| Altura de la pared: | 2,3 m |
| Altura total: | 2,6 m |
| Grosor de la pared: | 44 mm |
| Superficie interior: | 21 m² |
| Techo: | Ca 29 m², el kit incluye tablas de techo de 18 mm |
| Suelo: | 18 mm |
| Puertas: | 1 x puerta de entrada doble con cristal templado (1465 x 1970 mm) |
| Ventanas: | 3 x ventana oscilobatiente de cristal templado (555 x 1830 mm) 1 x ventana fija de cristal templado (555 x 1830 mm) |
| Material: | Abeto nórdico |
| Información adicional: | Vigas de base tratadas, listones anti-tormenta, kit de montaje, puertas y ventanas acristaladas, cerradura de cilindro, manual del producto, garantía de 5 años. |
















