Descripción
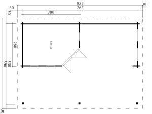
| Medidas exteriores de la casa: | 7,6 x 5,9 m |
| Altura de la pared: | 2,2 m |
| Altura total: | 2,47 m |
| Grosor de la pared: | 58 mm |
| Superficie interior: | 10 m² |
| Techo: | Ca 49 m², el kit incluye tablas de techo de 18 mm |
| Suelo: | 28 mm |
| Puertas: | 1 x puerta de dos hojas 1,43 x 1,95 (de doble acristalamiento) |
| Ventanas: | 2 x ventana oscilobatiente de 0,5 x 1,8 m, de doble acristalamiento. |
| Material: | Abeto nórdico |
| Información adicional: | Vigas de base tratadas, listones anti-tormenta, kit de montaje, puertas y ventanas acristaladas, cerradura de cilindro, manual del producto, garantía de 5 años. |











