Descripción
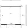
| Medidas exteriores de la casa: | 3,2 x 3,2 m |
| Altura de la pared: | 2,1 m |
| Altura total: | 2,45 m |
| Grosor de la pared: | 44 mm |
| Superficie interior: | 8,5 m² |
| Techo: | Ca 12 m², el kit incluye tablas de techo de 18 mm |
| Suelo: | 18 mm |
| Puertas: | 1 x puerta 1,43 x 1,96 (con doble cristal) |
| Ventanas: | 2 x ventana practicable de 0,65 x 1,43 m (con doble cristal) |
| Material: | Abeto nórdico |
| Información adicional: | Vigas de base tratadas, listones anti-tormenta, kit de montaje, puertas y ventanas acristaladas, cerradura de cilindro, manual del producto, garantía de 5 años. |










