Descripción
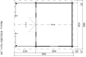
| Medidas exteriores de la casa: | 5,8 x 4,3 m |
| Altura de la pared: | 2,05 m |
| Altura total: | 2,74 m |
| Grosor de la pared: | 44 mm |
| Superficie interior: | 15 m² |
| Techo: | Ca 29 m², el kit incluye tablas de techo de 18 mm |
| Suelo: | 18 mm |
| Puertas: | 1 x puerta de entrada 1,43 x 1,96 (de doble acristalamiento) |
| Ventanas: | 1 x ventana practicable de 0,8 x 1,14 m, 2 x ventana de 0,5 x 1,8 m de doble acristalamiento. |
| Material: | Abeto nórdico |
| Información adicional: | Vigas de base tratadas, listones anti-tormenta, kit de montaje, puertas y ventanas acristaladas, cerradura de cilindro, manual del producto, garantía de 5 años. |














