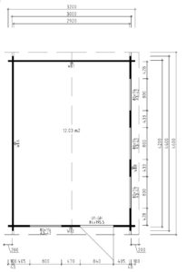
| Medidas exteriores de la casa: | 4,4 x 3,2 m |
| Altura de la pared: | 2,05 m |
| Altura total: | 2,45 m |
| Grosor de la pared: | 44 mm |
| Superficie interior: | 12 m² |
| Techo: | Ca 17 m², el kit incluye tablas de techo de 18 mm |
| Suelo: | 18 mm |
| Puertas: | 1 x puerta 0,84 x 1,96 (con doble cristal) |
| Ventanas: | 4 x ventana practicable de 0,8 x 1,14 m (con doble cristal). |
| Material: | Abeto nórdico |
| Información adicional: | Vigas de base tratadas, listones anti-tormenta, kit de montaje, puertas y ventanas acristaladas, cerradura de cilindro, manual del producto, garantía de 5 años. |
Las imágenes de los productos en esta página web son digitalizadas y pueden mostrar accesorios opcionales o diferir ligeramente del producto recibido. Solicite los planos de la caseta para comprobar el acabado y las especificaciones exactas y estaremos encantados de enviárselos por correo electrónico. Tenga en cuenta que el mobiliario / cuarto de baño / electrodomésticos / sanitarios tienen sólo fines ilustrativos y no son vendidos por Casetas da Jardín 24 ni están incluidos en el precio.
Caseta de jardín “Eva C” 12m² | 44mm | 4x3m
Caseta de jardín asequible de 12 m², hecha con abeto nórdico de crecimiento lento de alta calidad. El grosor de pared de 44 mm garantiza excelente estabilidad y una vida útil muy larga. Tablas de suelo de 18 mm, puertas y ventanas de acristalamiento doble y vigas de base tratadas de 44 x 65 mm.









