Casa de madera con un dormitorio y altillo “Holiday Q” 55m² | 70mm

Precio: 32.360,00

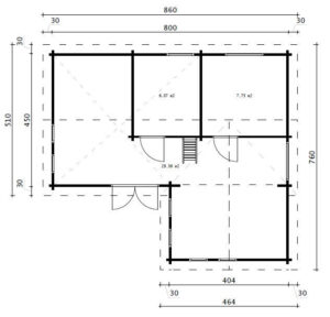
La casa Holiday Q ha sido diseñado para un bungaló de vacaciones familiares o una ampliación de la vivienda principal. La planta baja tiene 44 m² de superficie útil, el altillo añade 15 m² más, donde pueden dormir cuatro personas. La casa estándar tiene paredes con 70 mm de grosor, puertas y ventanas de doble acristalamiento (vidrio templado de seguridad), mecanismos oscilobatientes de las ventanas y cerraduras de cilindro de las puertas hechos en Alemania, tablas de suelo de 28 mm, tablas de techo de 18 mm, varillas metálicas de refuerzo insertadas a través de toda la pared, viguetas de techo extra fuertes de 150 mm, así como otras piezas de madera hechas de abeto nórdico cuidadosamente seleccionado. Con nuestro kit opcional de aislamiento para suelo y techo, además de un aparato de aire acondicionado, esta casa puede utilizarse durante todo el año.

Entrega: 3 - 6 semanas
SKU: G0319 Categoría: Etiqueta:

Descripción

Medidas exteriores de la casa: 8,6 x 7,6 m
Altura de la pared: 2,4 m
Altura total: 4,5 m
Grosor de la pared: 70 mm
Superficie interior: 44 + 15 m²
Techo: Ca 80 m², tablas de techo de 18 mm
Suelo: 28 mm
Puertas: 1 x puerta de entrada 1,50 x 2,08 (con doble cristal); 2 x puerta de paso 0,8 x 1,98 m
Ventanas: 1 x ventana oscilobatiente 0,8 x 1,14 m, 1 x ventana oscilobatiente 0,65 x 0,65 m, 6 x ventana oscilobatiente 0,5 x 1,8 m; con doble cristal
Material: Abeto nórdico
Información adicional: Vigas de base tratadas, listones anti-tormenta, kit de montaje, puertas y ventanas acristaladas, cerradura de cilindro, manual del producto, garantía de 5 años.

Valoraciones

No hay valoraciones aún.

Sé el primero en valorar “Casa de madera con un dormitorio y altillo “Holiday Q” 55m² | 70mm”