Descripción
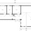
| Medidas exteriores de la casa: | 12 x 7,5 m |
| Altura de la pared: | 2,43 m |
| Altura total: | 4,52 m |
| Grosor de la pared: | 88 mm |
| Superficie interior: | 65 + 20 m² |
| Techo: | Ca 124 m², tablas de techo de 18 mm |
| Suelo: | 28 mm |
| Puertas: | 1 x puerta de entrada 1,54 x 2,08 m (con doble cristal); 3 x puerta de paso 0,8 x 2,08 m |
| Ventanas: | 5 x ventana oscilobatiente de 1,5 x 1,22 m, 4 x ventana oscilobatiente de 0,8 x 1,8 m, 1 x ventana oscilobatiente de 0,65 x 0,65 m; con doble cristal |
| Material: | Abeto nórdico |
| Información adicional: | Vigas de base tratadas, varillas anti-tormenta, kit de montaje, puertas y ventanas acristaladas, cerradura de cilindro, manual del producto, garantía de 5 años. |

















Valoraciones
No hay valoraciones aún.