Casa de madera con dos dormitorios y altillo “Dallas” 42m² | 70mm | 7x7m

Precio: 29.060,00

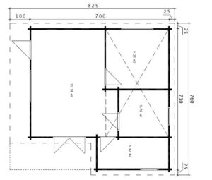
La casa de madera Dallas tiene una superficie interior amplia de 42 m² y consta de dos dormitorios, un cuarto de baño grande y un altillo de 5 x 3 m. La casa estándar tiene muchas características de calidad, como paredes de 70 mm, puertas y ventanas de doble acristalamiento (vidrio templado de seguridad), mecanismos oscilobatientes de las ventanas fabricados en Alemania, varillas metálicas anti-tormenta insertadas a través de toda la pared en las cuatro esquinas, tablas de suelo extra gruesas de 28 mm y vigas de base de 94 mm tratadas en autoclave. Recomendamos el kit de aislamiento térmico para suelo y techo, para mejorar significativamente la eficiencia energética a un precio razonable.

Entrega: 3 - 6 semanas
SKU: G0314 Categoría: Etiqueta:

Descripción

Medidas exteriores de la casa: 7,3 x 7,2 m
Altura de la pared: 2,4 m
Altura total: 3,8 m
Grosor de la pared: 70 mm
Superficie interior: 43 m²
Techo: Ca 67 m², el kit incluye tablas de techo de 18 mm
Suelo: 28 mm
Puertas: 1 x puerta de entrada 1,54 x 1,98 m con doble cristal, 1 x puerta de entrada 0,9 x 1,98 m con doble cristal, puerta de paso 0,84 x 1,52 m, 2 x puerta de paso 0,8 x 1,98 m, 1 x puerta de paso 0,7 x 1,98 m.
Ventanas: 1 ventana oscilobatiente de 1,54 x 1,14 m, 1 ventana oscilobatiente de 1,54 x 0,88 m, 2 ventanas oscilobatientes de 0,8 x 0,88 m, 1 ventana oscilobatiente de 0,51 x 0,51 m; con doble cristal
Material: Abeto nórdico
Información adicional: Vigas de base tratadas, listones anti-tormenta, kit de montaje, puertas y ventanas acristaladas, cerradura de cilindro, manual del producto, garantía de 5 años.

Valoraciones

No hay valoraciones aún.

Sé el primero en valorar “Casa de madera con dos dormitorios y altillo “Dallas” 42m² | 70mm | 7x7m”