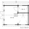
Descripción
| Medidas exteriores de la casa: | 4,95 x 3,95 m |
| Altura de la pared: | 3,25 m |
| Altura total: | 3,85 m |
| Grosor de la pared: | 70 mm |
| Superficie interior: | 18 m² + 8 m² altillo |
| Techo: | Ca 27 m², el kit incluye tablas de techo de 18 mm |
| Suelo: | 28 mm |
| Puertas: | 1 x puerta de entrada doble con cristal templado (145 x 195 cm), 1 x puerta de paso (80 x 198 cm) |
| Ventanas: | 2 x ventana fija de cristal templado (55 x 183 cm) 1 x oscilobatiente de cristal templado (154 x 92 cm) 1 x ventana practicable de cristal templado (55 x 55 cm) 2 x ventana oscilobatiente de cristal templado (84 x 92 cm) |
| Material: | Abeto nórdico |
| Información adicional: | Vigas de base tratadas, listones anti-tormenta, kit de montaje, puertas y ventanas acristaladas, cerradura de cilindro, manual del producto, garantía de 5 años. |















