Descripción
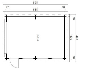
| Medidas exteriores de la casa: | 4 x 5,5 m |
| Altura de la pared: | 2,4 m |
| Altura total: | 2,8 m |
| Grosor de la pared: | 70 mm |
| Superficie interior: | 21 m² |
| Techo: | Ca. 26 m², el kit incluye tablas de techo de 18 mm |
| Suelo: | no |
| Puertas: | 1 puerta basculante Hörmann 2,96 x 2,04m; 1 x puerta de entrada 0,84 x 1,95 |
| Ventanas: | 3 x ventana practicable de 0,9 x 0,5 m de doble acristalamiento. |
| Material: | Abeto nórdico |
| Información adicional: | Vigas de base tratadas, listones anti-tormenta, kit de montaje, puertas y ventanas acristaladas, cerradura de cilindro, manual de producto, garantía de 5 años. |













