Casa de Madera “Hansa Office” 40m² | 70mm | 10x4m

Precio: 29.060,00

Si está buscando una oficina económica para 5-6 personas, alojamiento para invitados, o necesita ampliar su vivienda, nuestra Hansa Office es la caseta para tener en cuenta. Le hemos puesto ventanas grandes de doble cristal para dejar entrar mucha luz natural y permitir disfrutar de unas vistas magníficas al exterior. La Hansa Office tiene paredes extra gruesas de 70 mm, y nuestras ventanas y puertas de calidad superior con doble acristalamiento. Si aísla el suelo y el techo e instala aire acondicionado, puede usar esta caseta los 365 días del año.

Entrega: 3 - 6 semanas
SKU: G0176 Categoría: Etiqueta:

Descripción

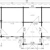
Medidas exteriores de la casa: 10 x 4 m
Altura de la pared: 2,40 m
Altura total: 3,24 m
Grosor de la pared: 70 mm
Superficie interior: 40 m²
Techo: Ca. 62 m², el kit incluye tablas de techo de 18 mm
Suelo: 28 mm
Puertas: 1 x puerta de entrada 1,43 x 1,95, 1 x puerta de entrada 0,84 x 1,95 (de doble acristalamiento), 5 x puerta de paso 0,8 x 1,98 m.
Ventanas: 1 x ventana oscilobatiente de 0,5 x 0,5 m, 5 x ventana oscilobatiente de 0,8 x 1,8 m, 1 x ventana oscilobatiente de 2,5 x 1,8 m de doble acristalamiento.
Material: Abeto nórdico
Información adicional: Vigas de base tratadas, listones anti-tormenta, kit de montaje, puertas y ventanas acristaladas, cerradura de cilindro, manual del producto, garantía de 5 años.