Casa de madera con dos dormitorios “Valencia” 60m² | 70mm | 11x6m

Precio: 33.880,00

El modelo Valencia es una casa espaciosa de dos dormitorios con amplio salón comedor, perfecta para una segunda vivienda, alquiler vacacional o para ampliar su casa actual. Tiene algo más de 60 m² de superficie interior. El kit estándar incluye tablones de pared de 70 mm de grosor, puertas y ventanas de doble acristalamiento, tablas de suelo extra gruesas de 28 mm, varillas metálicas anti-tormenta para insertar dentro de las paredes, tablas de techo, tornillos, clavos y todos los demás componentes necesarios para el montaje de la casa. Todas las piezas de madera están hechas de abeto nórdico de crecimiento lento. Las ventanas de doble cristal tienen mecanismos oscilobatientes de calidad superior, fabricados en Alemania.

Entrega: 3 - 6 semanas
SKU: G0262 Categoría: Etiqueta:

Descripción

 

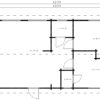
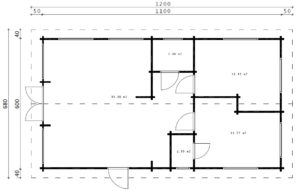
Medidas exteriores de la casa: 11 x 6 m
Altura de la pared: 2,4 m
Altura total: 3,1 m
Grosor de la pared: 70 mm
Superficie interior: 63 m²
Techo: Ca 84 m², el kit incluye tablas de techo de 18 mm
Suelo: 28 mm
Puertas: 2 x puerta de entrada A) 1,54 x 2,08 m B) 0,9 x 2,08 m (de doble acristalamiento); 4 x puerta de paso 3 x 0,8 x 2,08 m, 1 x 0,7 x 2,08 m.
Ventanas: 8 x ventana practicable de 1,5 x 0,88 m, 1 x ventana practicable de 0,8 x 0,88 m, 1 ventana practicable de 0,5 x 0,5 m, de doble acristalamiento.
Material: Abeto nórdico
Información adicional: Vigas de base tratadas, listones anti-tormenta, kit de montaje, puertas y ventanas acristaladas, cerradura de cilindro, manual del producto, garantía de 5 años.