Casa de madera con dos dormitorios “Murcia” 47m² | 70mm | 11x4m

Precio: 24.990,00

La casa de madera Murcia es una opción económica para construir una cómoda segunda residencia, casa de alquiler vacacional o casa de huéspedes grande. Tiene amplio salón comedor de 31 m², dos dormitorios y baño. Tablones de pared extra gruesas de 70 mm, tablas de suelo robustas de 28 mm, varillas metálicas dentro de las paredes, puertas y ventanas de calidad superior con doble cristal aseguran una vida útil larga, estabilidad y resistencia a la intemperie. Las ventanas tienen mecanismos oscilobatientes de fabricación alemana. Para poder disfrutarla durante todo el año, la casa necesitará aislamiento térmico para el suelo y techo, así como calefacción en invierno y aire acondicionado en verano.

Entrega: 3 - 6 semanas
SKU: G0263 Categoría: Etiqueta:

Descripción

 

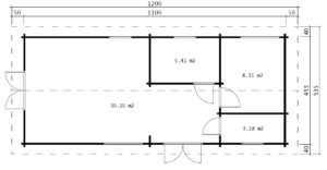
Medidas exteriores de la casa: 11 x 4,5 m
Altura de la pared: 2,4 m
Altura total: 2,95 m
Grosor de la pared: 70 mm
Superficie interior: 47 m²
Techo: Ca 66 m², el kit incluye tablas de techo de 18 mm
Suelo: 28 mm
Puertas: 2 x puerta de entrada 1,47 x 1,98 m (de doble acristalamiento); 4 x puerta de paso 2 x 0,8 x 1,98 m, 1 x 0,7 x 1,98 m.
Ventanas: 2 x ventana practicable de 1,5 x 0,88 m, 3 x ventana practicable de 0,8 x 0,88 m, de doble acristalamiento.
Material: Abeto nórdico
Información adicional: Vigas de base tratadas, listones anti-tormenta, kit de montaje, puertas y ventanas acristaladas, cerradura de cilindro, manual del producto, garantía de 5 años.