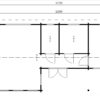
Descripción
| Medidas exteriores de la casa: | 5,75 x 11 m |
| Altura de la pared: | 2,56 m |
| Altura total: | 3,31 m |
| Grosor de la pared: | 70 mm |
| Superficie interior: | 50 m² |
| Techo: | Ca 82 m², el kit incluye tablas de techo de 18 mm |
| Suelo: | 28 mm |
| Puertas: | 1 x puerta de entrada 1,5 x 1,98 (de doble acristalamiento); 3 x puerta de paso 0,8 x 1,98 m. |
| Ventanas: | 2 x ventana practicable de 1,5 x 1,14 m, 7 x ventana practicable de 0,8 x 1,8 m, 1 ventana practicable de 0,5 x 0,5 m, 1 ventana practicable de 2,3 x 1,14 m de doble acristalamiento. |
| Material: | Abeto nórdico |
| Información adicional: | Vigas de base tratadas, listones anti-tormenta, kit de montaje, puertas y ventanas acristaladas, cerradura de cilindro, manual del producto, garantía de 5 años. |















