Description
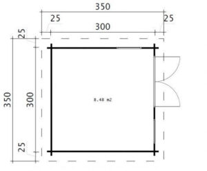
| External Width: | 3,2 m (10′ 6”) |
| External Depth: | 3,2 m (10′ 6”) |
| Internal Eaves Height front / back: | 2,20 m (7′ 2”) |
| Ridge height: | 2,45 m (8′ 0”) |
| Wall thickness: | 44 mm |
| Internal Area: | 8,5 m² |
| Roof: | Ca 13 m², 18 mm |
| Floor: | 18 mm |
| Door Opening Size: | 1,40 x 1,95 m |
| Door style | Part glazed, double doors |
| Number of windows: | 1 fixed and 1 opening (0,65 x 1,43 m) |
| Glazing Material: | double glazed 3 mm toughened safety glass in doors and windows |
| Material: | DIY garden office made of slow grown Nordic spruce, untreated |
| Additional information: | Treated foundation joists, wind braces, assembly kit, real glass in windows and doors, cylinder lock, product manual, 5 years guarantee. |












Reviews
There are no reviews yet.