Description
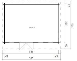
| External dimensions: | 6 x 4 m (19′ 8” x 13′ 1”) |
| Wall height: | 2,23 m (7′ 3”) front / 2,1 m (6′ 10”) back |
| Ridge height: | 2,47 m (8′ 1”) |
| Wall thickness: | 44 mm |
| Internal area: | 21 m² |
| Roofing: | ca 25 m², 18 mm |
| Floor: | 18 mm |
| Door (s): | Double door 1,5 x 1,99 m, glazing |
| Window (s): | 3 x Opening Tilt and Turn (55.5 x 183 cm) 1 x Fixed Non-opening (55.5 x 183 cm); double glazing, tempered safety glass |
| Material: | Nordic spruce, untreated |
| Additional information: | Treated foundation joists, wind braces, assembly kit, real glass in windows and doors, cylinder lock, product manual, 5 years guarantee. |
















