Description
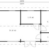
| External dimensions: | 11 m (36′ 1”) x 4,5 m (14′ 9”) |
| Wall height: | 2,4 m (7′ 10”) |
| Ridge height: | 2,95 m (9′ 8”) |
| Wall thickness: | 70 mm |
| Internal area: | 47 m² |
| Roofing: | Ca 66 m², 18 mm |
| Floor: | 28 mm |
| Door (s): | External doors (2) 1,54 x 2,08 m; 2 internal doors 0,8 x 2,08 m, 1 internal door 0,7 x 2,08m Door style Double glazed, double doors; 3 internal doors without glazing (single) |
| Window (s): | 2 x window 1,5 x 0,88 m; 3 x window 0,8 x 0,88 m. All opening. Glazing Material: 3 mm Real Glass (Double Glazed) |
| Material: | Nordic spruce, untreated |
| Additional information: | Treated foundation joists, wind braces, assembly kit, real glass in windows and doors, cylinder lock, product manual, 5 years guarantee. |













