Description
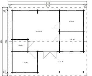
| External dimensions: | 8,75 m (28′ 8”) x 7,5 m (24′ 7”) |
| Wall height: | 2,56 m (8′ 4”) |
| Ridge height: | 3,31 m (10′ 10”) |
| Wall thickness: | 70 mm |
| Internal area: | 50 m² |
| Roofing: | Ca 80 m², 18 mm |
| Floor: | 28 mm |
| Door (s): | External doors 1,50 x 1,98; 3 internal doors 0,8 x 1,98 m; 1 internal door 0,7 x 1,98 m. Door style Double glazed, double doors; 4 internal doors without glazing (single) |
| Window (s): | 4 x window 1,5 x 1,14 m; 1 window 0,5 x 0,5 m, 4 x window 0,8 x 1,8 m. All opening. Glazing Material: 3 mm Real Glass (Double Glazed) |
| Material: | Nordic spruce, untreated |
| Additional information: | Treated foundation joists, wind braces, assembly kit, real glass in windows and doors, cylinder lock, product manual, 5 years guarantee. |











