Description
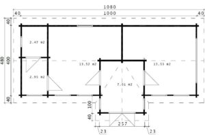
| External Width: | 10 m (32′ 9”) |
| External Depth: | 4 m (13′ 1”) |
| Internal Eaves Height: | 2,4 m (7′ 10”) |
| Ridge height: | 3,24 m (10′ 7”) |
| Wall thickness: | 70 mm |
| Internal Area: | 40 m² |
| Roof: | ca 62 m², 18 mm |
| Floor: | 28 mm |
| Door Opening Size: | External doors A 1,43 x 1,95; internal doors (4) 0,8 x 1,98 m |
| Door style | A) Part glazed, double |
| Windows | 1 window 0,51×0,51m, 6 windows 0,79×1,79m, 1 window element 2,49×1,83m, 2 windows 0,51×1,79m |
| Glazing Material: | 2 x 3 mm Real Glass (Double Glazed) |
| Material: | Large Timber Office Building made of slow grown Nordic spruce, untreated |
| Additional information: | Treated foundation joists, wind braces, assembly kit, real glass in windows and doors, cylinder lock, product manual, 5 years guarantee. |






















Reviews
There are no reviews yet.