Description
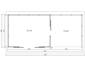
| External width: | 6.57 m (21′ 6”) |
| External depth: | 2.88 m (9′ 5”) |
| Internal eaves height: | 2.0 m (6′ 6”) |
| Ridge height: | 2.66 m (8′ 7”) |
| Wall thickness: | 21 mm |
| Area: | 9.7 m² (internal) + 7.3 m² (veranda) |
| Roof area: | 25.5 m² |
| Floor: | 21 mm |
| Door opening size: | 0.89 x 1.96 m |
| Number of windows: | 1 openable window 0.6 x 0.9 m |
| Glazing material: | 4 mm toughened safety glass |
| Equipment for all Grillkotas and BBQ Huts included in standard price: | Charcoal BBQ Grill, Granite table fitted around the grill, adjustable smoke extraction hood, chimney and chimney cap set. |





Reviews
There are no reviews yet.