Description
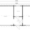
| External dimensions: | 9 m (29′ 6”) x 4,5 m (14′ 9”) |
| Wall height: | 2,3 m (7′ 6”) |
| Ridge height: | 2,9 m (9′ 6”) |
| Wall thickness: | 70 mm |
| Internal area: | 38 m² |
| Roofing: | Ca 48 m² incl. black roofing felt, 18 mm |
| Floor: | 28 mm |
| Door (s): | External door 0,9 x 2,08; 2 internal doors 0,8 x 2,08 m. Door style: Double glazed, single door; 2 internal doors without glazing (single) |
| Window (s): | 1 window 1,5 x 1,14 m, 2 x window 2,3 x 1,14 m, 1 window 0,8 x 1,14 m. All opening. Glazing Material: 3 mm Real Glass (Double Glazed) |
| Material: | Nordic spruce, untreated |
| Additional information: | Treated foundation joists, wind braces, assembly kit, real glass in windows and doors, cylinder lock, product manual, 5 years guarantee. |











