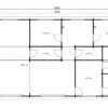
Description
| External dimensions: | 15 x 8,5 m |
| Wall height: | 2,7 m |
| Ridge height: | 4,4 m |
| Wall thickness: | 70 mm |
| Internal area: | 120 m² |
| Roofing: | Ca 156 m², 18 mm |
| Floor: | 28 mm |
| Door (s): | External French doors 146 x 198 cm, 2 external sliding doors 260 x 198 cm, 8 internal doors 80 x 198 cm Double glazed external doors; 8 internal doors without glazing (single) |
| Window (s): | 6 windows: 183 x 55 cm (1); 154 x 118 cm (3); 83 x 55 cm (1), 150 x 183 cm (1). All opening. Glazing Material: 4 mm toughened safety glass (Double Glazed) |
| Material: | Nordic spruce, untreated |
| Additional information: | Treated foundation joists, wind braces, assembly kit, real glass in windows and doors, cylinder lock, product manual, 5 years guarantee. |
















