Description
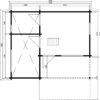
| External dimensions: | 5,95 x 5,05 m (19′ 6” x 16′ 6”) |
| Wall height: | 2,47 m (8′ 1”) |
| Ridge height: | 3,64 m (11′ 11”) |
| Wall thickness: | 70 mm |
| Internal area: | 26,4 m² |
| Roofing: | Ca 41,5 m² incl. black roofing felt, 18 mm |
| Floor: | 28 mm |
| Door (s): | Single door 0,9 x 1,98 m, glazing + 2 x interior door 0,8 x 1,98 m |
| Window (s): | 2 x double window (opening) 1,54 x 1,14 m, single window (opening) 0,46 x 0,96 m, 1 x single window (opening) 0,51 x 0,51 m, 1 x single window (opening) 0,8 x 1,14 m |
| Material: | Nordic spruce, untreated |
| Additional information: | Treated foundation joists, wind braces, assembly kit, real glass in windows and doors, cylinder lock, product manual, 5 years guarantee. |



















